Katso valikoimaa »
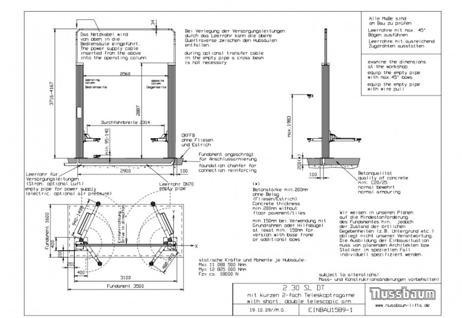
2-post tõstuk SMART LIFT 2.30 SL DT 3T, RAL5001, Nussbaum
Tuotenumero:SL230.8000124D5&NB
Pyydä henkilökohtaista tarjousta
Tilapäisesti loppu. Kysy toimitusaikaaasiakaspalvelu@stokker.fi
Toimitus kuriirilla
alkaen 96.48€



